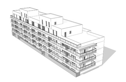
Villa Romane St-Jacques-de-la-Lande (35) GOSPEL Architectes SORREL Economiste Maître d'Ouvrage : Espacil Construction Surface : 2 600 m² SP Coût : 2 750 000 € HT Calendrier : Livraison 2012 Programme : Immeuble de 40 logements en accession sociale. Le bâtiment vient constituer le front bâti Ouest d’un îlot urbain abritant en son cœur un espace paysager public ouvert sur une mare naturelle. La façade Ouest, longeant un mail piétonnier planté, est conçue sur le principe de la «double façade» par un système de profondes logis animées par des pare-vues mobiles. La sobriété des volumes et des percements assurent la continuée urbaine de la ZAC et accompagnera l’émergence d’une future chapelle. Performance HPE - CERQUAL - RT 2005
Projets Agence Actualités Contact
Logements Équipements Enseignement Tertiaire

GOSPEL Architectes @ Tout Droits Réservés 2018

Glossaire -

Contact -

Mentions légales - Crédits photographiques